The Winslow, a 3,925 sq. ft. Modern Estate home, offers 5 bedrooms, 5 baths, and an open floor plan with versatile living spaces for today’s families.
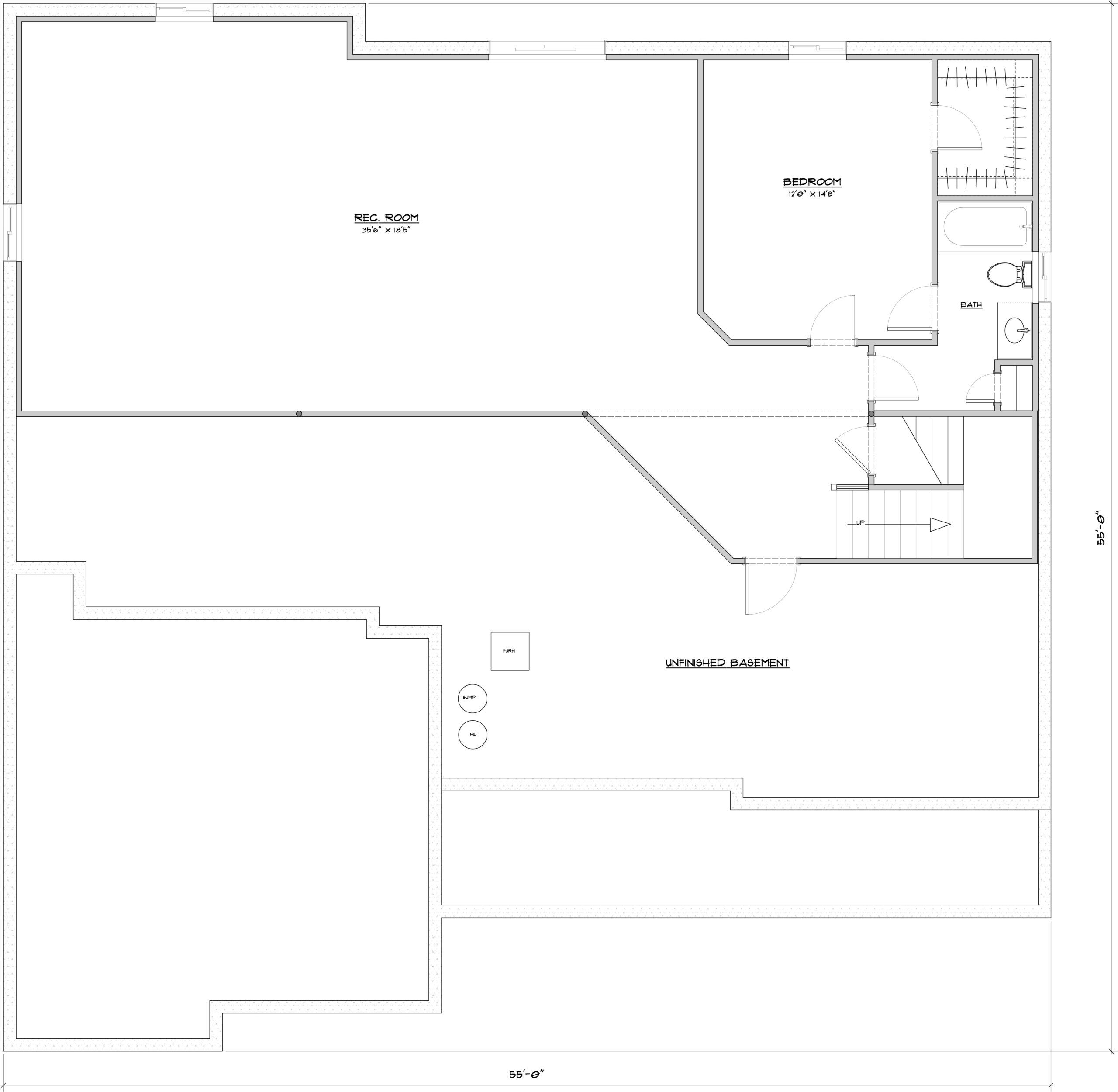
Learn MoreAt 55’ wide and nearly 4,000 sq. ft., the Winslow provides an expansive layout with flexibility throughout. The open floor plan features a Two-Story Family Room with a gas fireplace, a Gourmet Kitchen with Breakfast Nook, and a Formal Dining Room for entertaining. The first floor Flex Suite can serve as a home office or playroom, while the Guest Suite offers the option of a first-floor Master Bedroom. An oversized Mud Room with generous storage space enhances everyday convenience. Upstairs, each of the four bedrooms has its own walk-in closet, giving every family member privacy and comfort. With 3,925 sq. ft., 5 bedrooms, 5 baths, dimensions of 55’ x 55’, a 2-car garage, and a full unfinished basement, the Winslow is a modern Estate Series home designed to grow with your family.
©New Dimensions, Inc.
Pictures, illustrations and floor plans do not necessarily represent final plans, designs, and elevations. Final plans approved by builder take precedence over all other representations.
Sq. footage
3925 ft²
Dimensions
55′ x 55′
Bedrooms / Bathrooms
5 beds / 5 baths
Trim Package
Modern
Series
Estate
Width
55′