Thank you for joining me for my weekly feature, “A Word From Jen…”, which is a short touch point I post each week to keep you informed about what’s happening around NDI, the market, and even in my own house. Here we go!
__________________________________________________________________
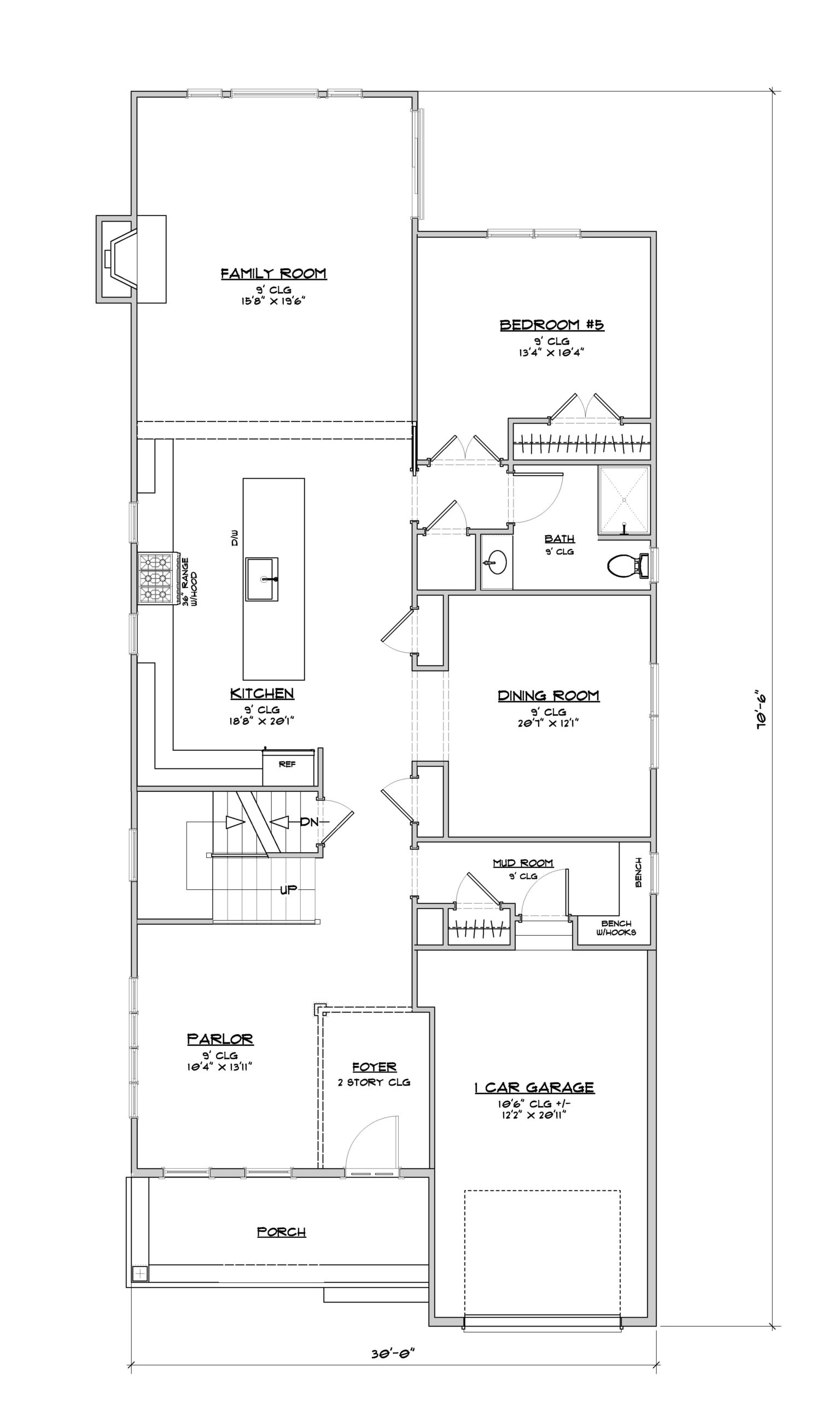
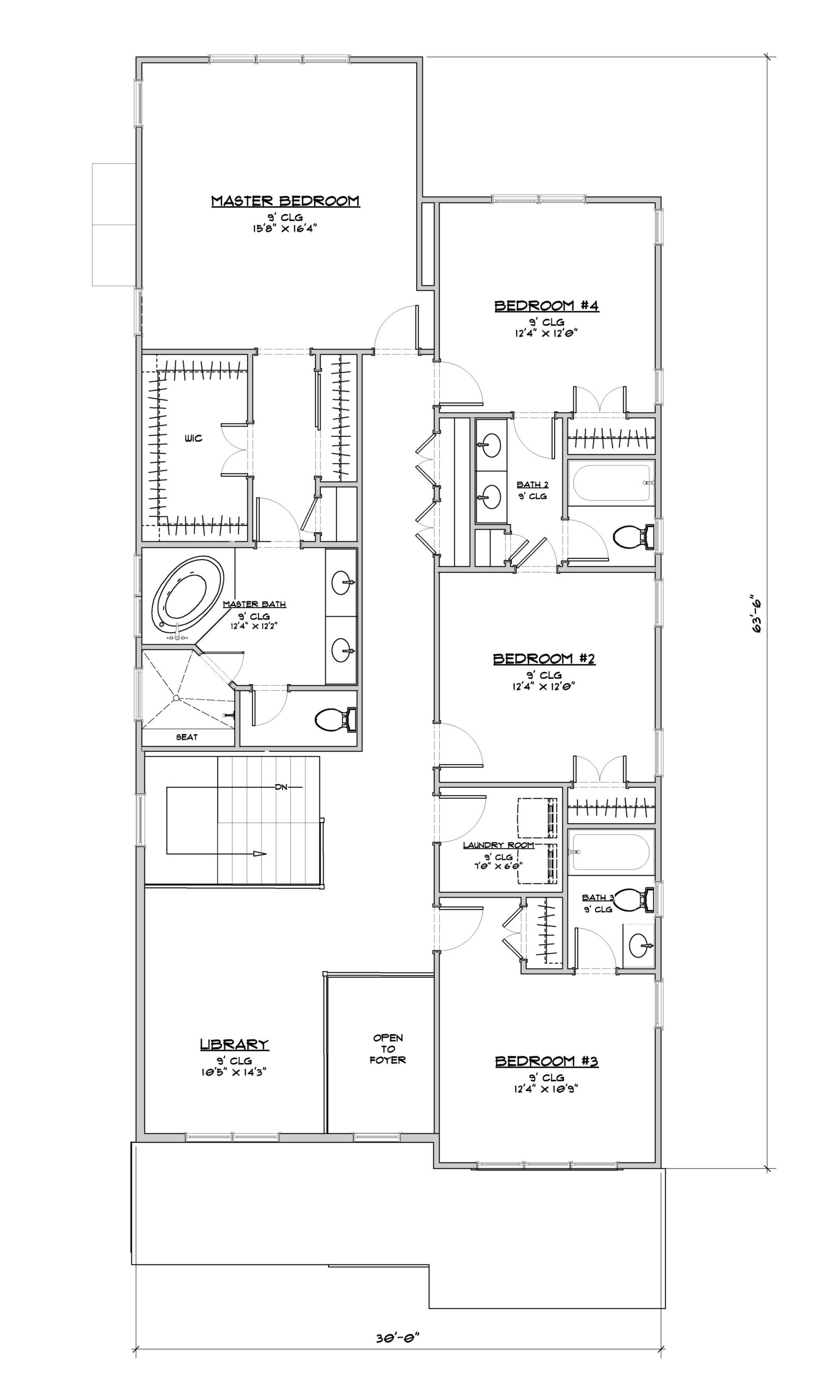
We are building our NEWEST design, The Lincoln Model, on a lot in Falls Church City. This is a picture I took on Monday with the 2nd floor walls set…
I snapped this picture just this morning. What a difference a few days can make in the early stages of construction!
This home is part of our Legacy Series of homes, which means it was designed with narrow lots in mind.

So many wonderful neighborhoods in Northern Virginia are known for long and narrow lots. Homes like the Lincoln Model are a perfect fit! At over 3200 square feet but only 30′ wide, this design checks all the boxes – Farmhouse style, open concept, flex space, 1st floor guest suite, and more!


Stay tuned for more construction updates!
Dream. Build. Live.