Loading Image

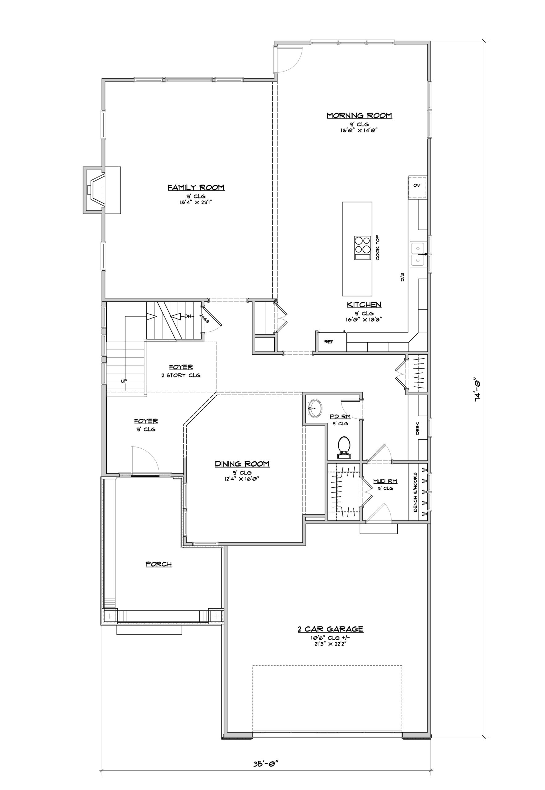
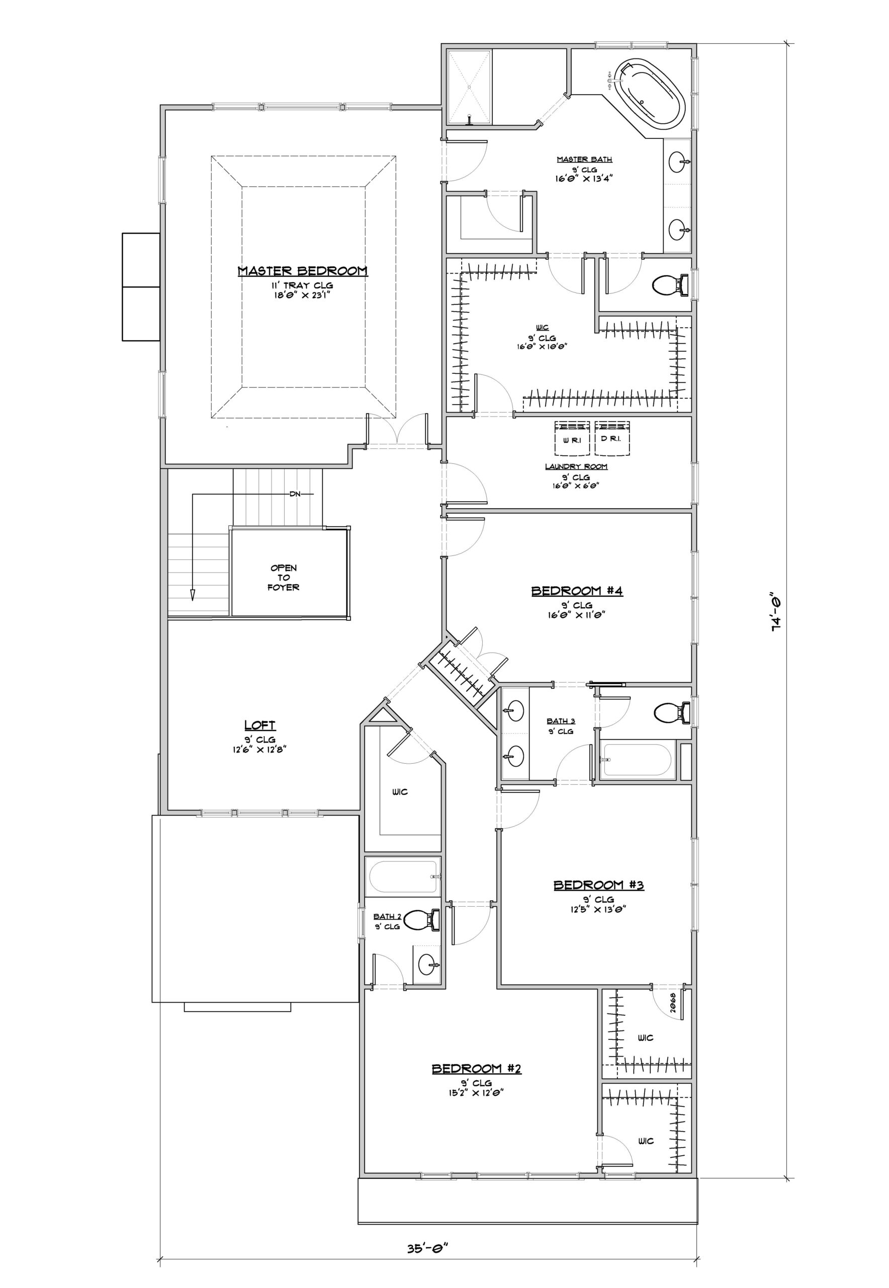
NEW HOME DESIGN: The Hillwood Model

By Jennifer Landers | Published April 12, 2018

We’re breaking ground TODAY on our next spec home in Falls Church. This time around, we are building our Hillwood Model – it is brand new to our Legacy Collection of homes and it is lovely!

At just over 3800 square feet and 35′ wide, this home will fit perfect on your narrow lot!

It also has all the drop and planning zones a busy family needs with the mud room and built in desk area.

I can’t wait to show you the first Hillwood Model! Right now – the lot looks like this…

But it won’t be long before our next beautiful model home will be ready for tours!

Dream Big. Build Smart.

Scroll