Have you ever wondered what square foot numbers mean? What do they include? Or more importantly, what should it include? I thought it would be helpful to define how our square foot numbers are calculated, so you know exactly what you’re getting.
Back in the day, we would calculate square footage by hand. Dad taught me how to do it. In fact, one of my favorite “games” is sitting down with a set of house plans to compute a square foot take-off (nerd alert!). We used to do it all the time. Dad would sit down and compute based on his calcs, I would do mine, and then we’d compare. Seldom did our numbers match exactly, but we were always within 10-15 square feet of each other. I guess using a scale to calculate a set of plans is becoming a lost art since everything is computerized now.
But I still love my scale. It was handed down to me by Earl Heninger. Earl was a dear friend of our family and Dad’s first hire at NDI.

Earl helped Dad run the company until he retired in 1997 (although even in his retirement he was still helping us!). When I started with NDI in 2001, he gave me his scale and his staple remover.
Earl passed away in 2016 so these items are a treasure to me. He had written his name in Whiteout which has worn off over the years…
And while I don’t use the scale much anymore, I’ll pull it out to do a take-off now and again.
Just to see if I can get it close to the computer take-off.
I told you. Nerd.
So how should square footage be calculated? Here is how we calculate square footage, but first, a few things to remember…
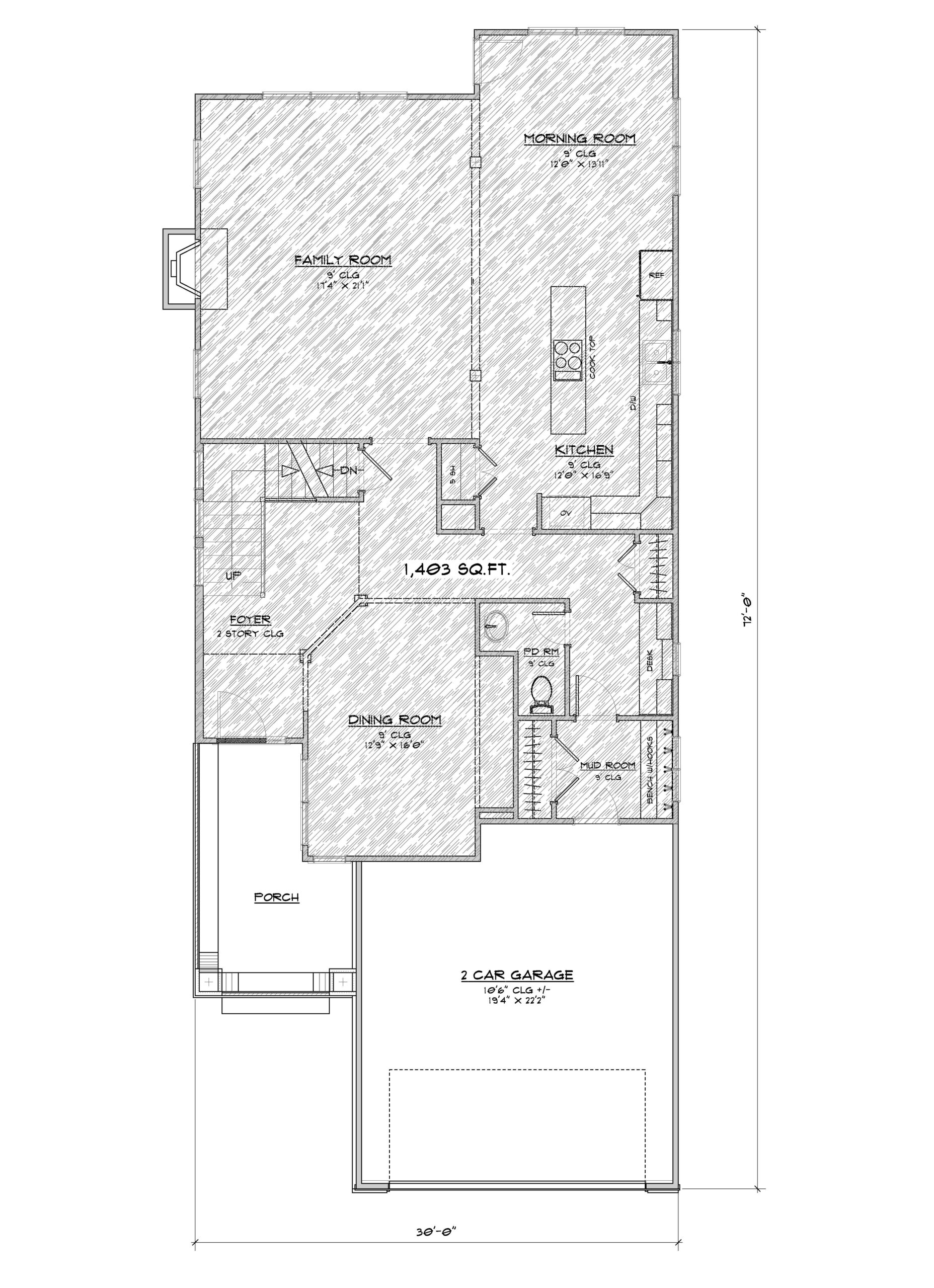
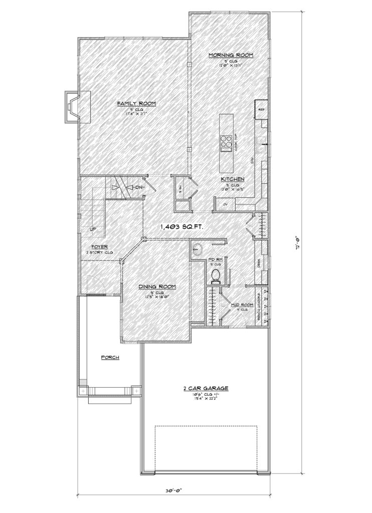
The First Floor
When calculating finished square footage (also called taxable), measurements are pulled from the outside of the framed wall to outside of the framed wall and everything in between including the stairs. We do not count porches or garages. In the sketch below, you will see the shaded areas represent what can be counted as finished square footage.
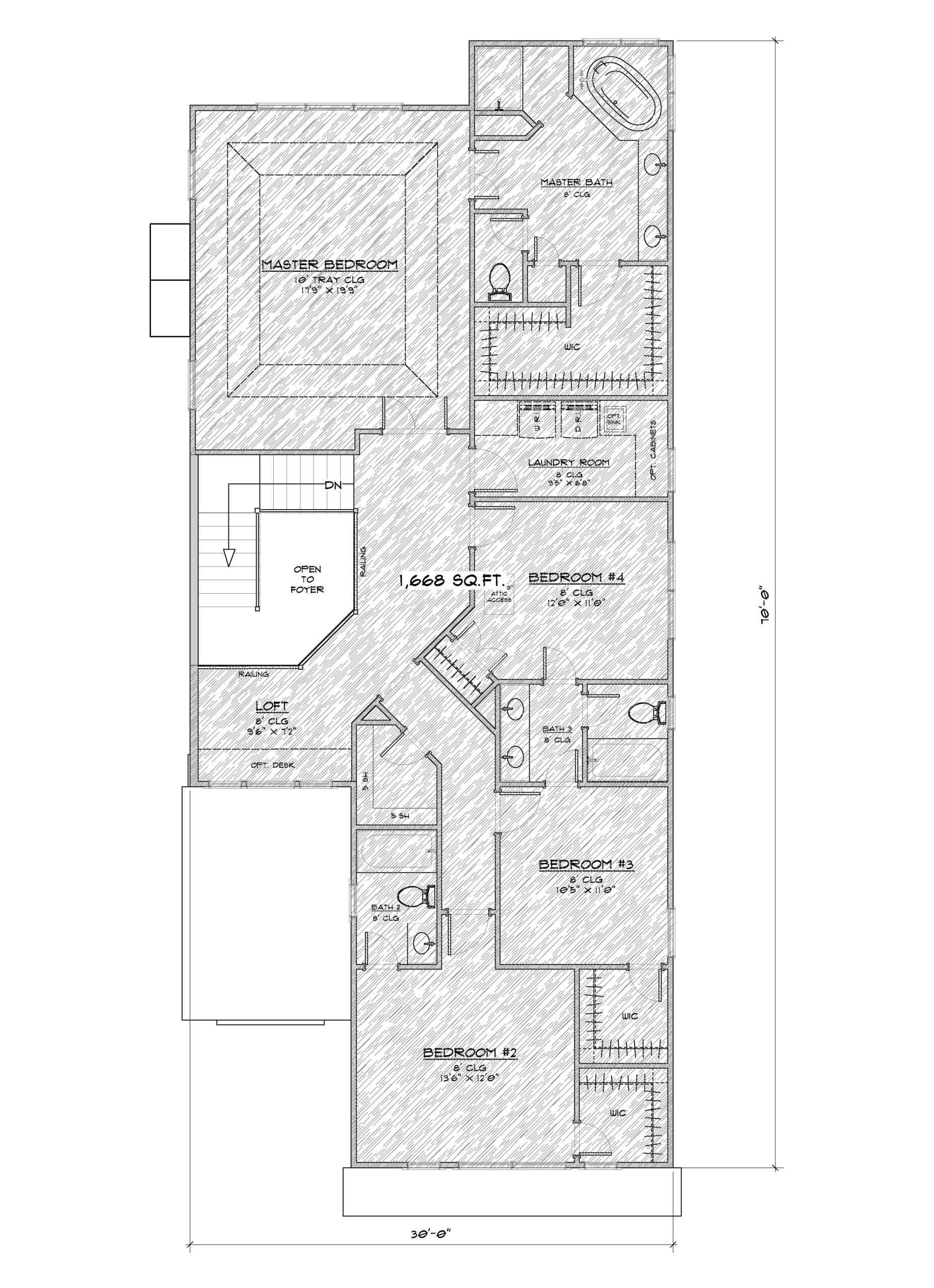
The Second Floor
When calculating finished square footage (also called taxable) on the second floor, measurements are also pulled from the outside of the framed wall to outside of the framed wall and everything in between. The stairs and any 2-story ceilings are NOT counted in the second floor number (they are represented in the first floor number). In the sketch below, you will see the shaded areas represent what can be counted as finished square footage.
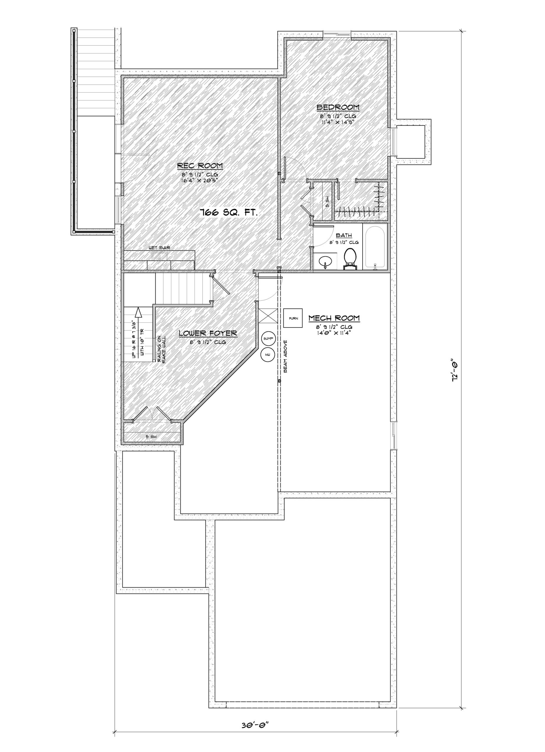
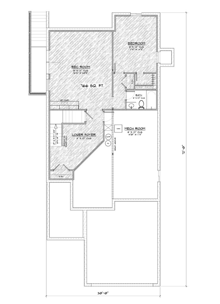
Finished Basements
When calculating finished square footage in the basement, measurements are pulled from the inside of the concrete wall to inside of the concrete wall and everything in between. We include the stairs in our finished basement price so that isn’t counted in our numbers. The finished basement bathroom is counted separately since it is priced separately. And we do not count unfinished areas. In the sketch below, you will see the shaded areas represent what can be counted as finished square footage.
I hope this helps you understand what we mean when we publish a square foot number. We want you to know what you’re getting – no more, no less.
Dream Big. Build Smart.