Loading Image

NEW Design! The Greenhill Model

By Jennifer Landers | Published May 16, 2017

The team and I have been talking a lot about developing new one level living plans, and I’m proud to show you the first of these designs. We started working with a client a few months ago who owns a lot in Loudoun County and was interested in a one level plan. Over the last 10 years, residential building activity in Loudoun has slowed but over the last couple of years, we’ve been getting a few projects per year “out there.” In fact, a lot of the outlying areas have picked up recently. Is it a trend?

Maybe. Maybe not. But one thing is clear, there is a growing demand for one level living (and homes that are more spread out in general) and we are responding to that need. Here is the Greenhill Model…

This home has just about everything you could want in a new home. The Greenhill is an open-concept floor plan with a large Master Bedroom Suite and three additional bedrooms. I love how the Kitchen opens up to the Family Room and the Master Bedroom is tucked (far) away from the main living areas – PRIVACY!

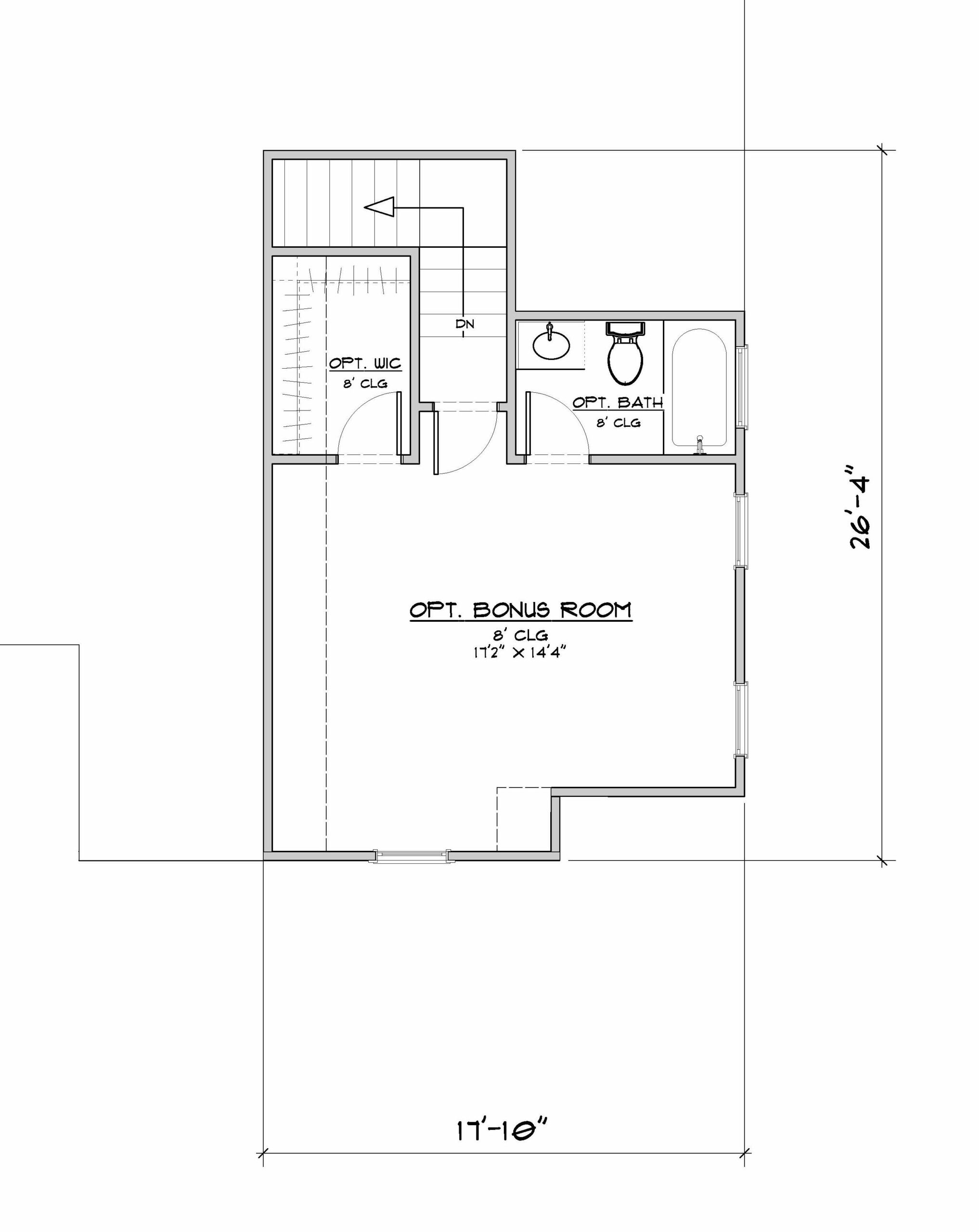
Need more space? The Greenhill Model has an optional Loft/5th Bedroom over the garage!

 

I’m looking forward to releasing the Greenhill Model later this month but here are the deets as we know them today!

The Greenhill Model

2742 Square Feet (additional 350 Square Feet with Optional Bonus Room)

4 Bedrooms/3.5 Bathrooms

Stay tuned for pricing and updates on the first Greenhill Model coming later this year!

Dream Big. Build Smart.

Scroll