Loading Image

What We’re Building: Jen’s Week In Review

By Jennifer Landers | Published December 15, 2016

Welcome to my Week In Review! Lots going on this week but first, we had our company Christmas party on Saturday evening. It is always such a nice evening and one of the few times a year we get to see spouses! This year, we went to 2941 Restaurant in Falls Church. One of my favorite spots in the area.

team-pic

Starting Soon!

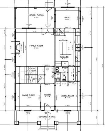
We will be starting a custom home for a client in the City of Alexandria. This home started off as a Nottingham Model, and now it is a custom version of it. We had to make a few changes in order to comply with the City regulations for development. It’s still the Nottingham at heart but with a twist!

heckel

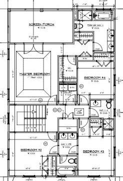
heckel-2nd-floor

I can’t wait to see the double screen porch on the rear.

heckel2

This Week’s Settlement

We finished this beautiful Savannah Model and turned the keys over our client on Monday!

exterior-front-elevation-_dsc3257

main-level-kitchen-_dsc3220

main-level-kitchen-_dsc3211

Thank you “P” Family for choosing NDI!

This Week On The Blog

Sarah is back this week talking about hardwood flooring characteristics. Do you like a lot of color variation or do you prefer a monochromatic look? Do you like a smooth finish or textured finish? So many different styles to choose from that can really transform the look of a room!

Also on the blog this week – update on the Vet House! It is almost complete and we are so excited! Get a full update by clicking HERE.

Un-Trim A Tree

For the last several years, our team has participated in a local project called Un-Trim A Tree. We each get to purchase a Christmas present for a child. We know their name, their age, and their Christmas wish! It is such an awesome way to give back. And boy is there a need.

This year, Un-Trim A Tree will serve 5,400 children in Prince William County. Most of those children are part of the Head Start Program which gives Pre-K kids an opportunity for learning before they start Kindergarten. To qualify for  the program, a family of four must make a yearly income of $24K or below. Think about that for a minute. Think about supporting a family of 4 with $1200/month.

How does it work? Each NDI Team Member went shopping for “their” kids and then we bagged all of the gifts for delivery. On Tuesday, Brenda, Annette, Dad and I loaded up my truck and headed to the collection site.

truck

bags

group

One of the things I love about this project is that we know who we are impacting by our giving. I love to think about “my” kids and what their reaction will be on Christmas morning when they get their Christmas wish.

Thank you for stopping by my blog today! Wishing you a restful weekend as you prepare for the final week before the holidays!

Dream Big. Build Smart.

Scroll