Loading Image

NEW Plan Design: The Winslow

By Jennifer Landers | Published May 24, 2016

This past weekend we held a plan reveal for our newest plan design, the Winslow.

NewDimensionWinslowRender2Stone-(002)

Totally loving this design! My favorite feature of the Winslow is the beautiful elevation. I love the offset on the garage and the combination of stone and shingle.

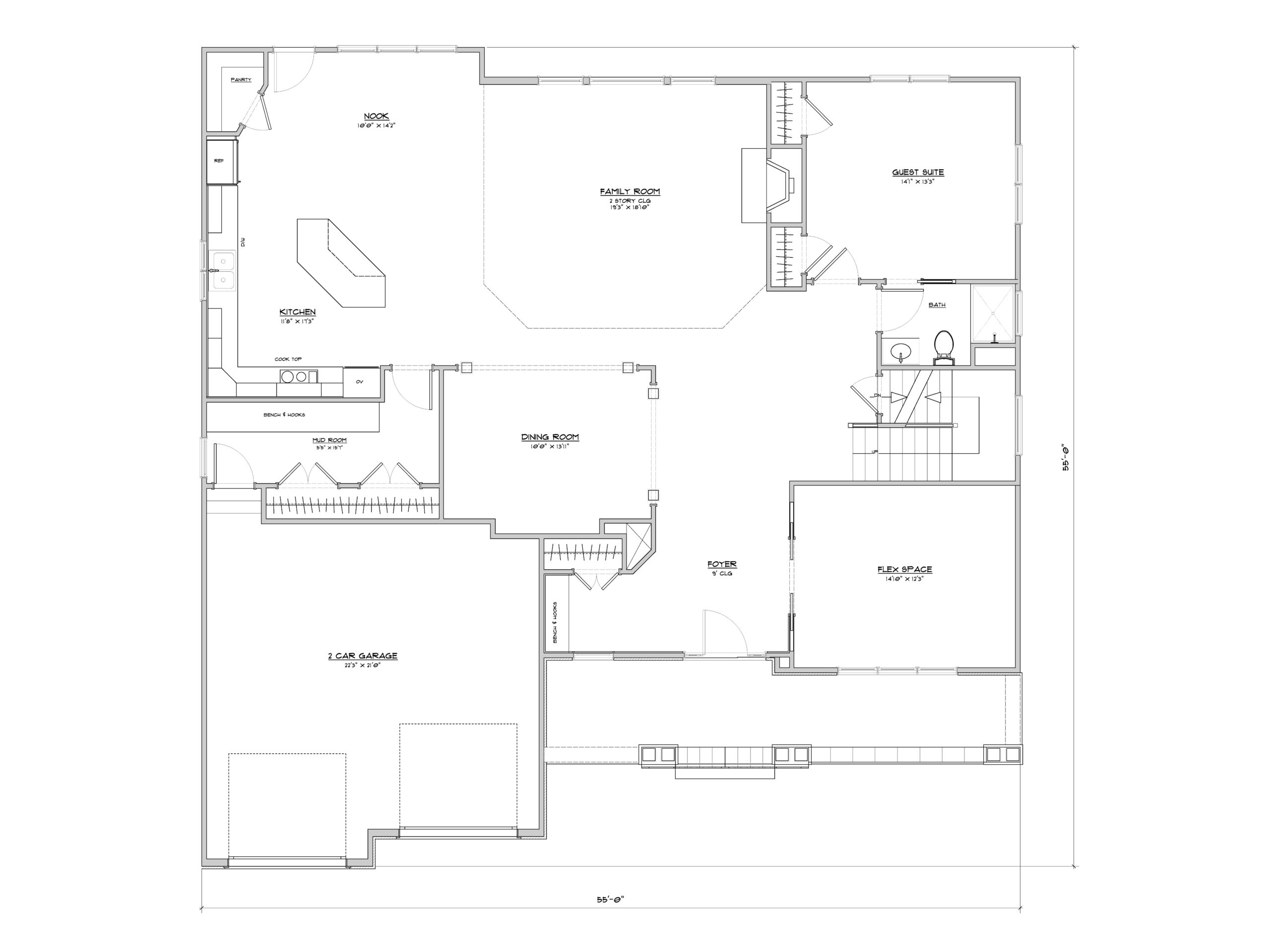
Inside, the Winslow has just over 3700 square feet. I love the fact that it has a Guest Suite on the first floor and Flex Space. The Flex Space has double French doors which makes it easy to adapt it to your lifestyle. Work from home and need a Home Office? Like to entertain and need a Formal Living Room? Play Room for the kids? Your choice!

And checkout that huge Mud Room. What I wouldn’t give for that closet space and expansive bench/hook space.

Winslow FF

It has 5 bedrooms (4 up and 1 down) and 4 full bathrooms (3 up and 1 down).  The bedroom sizes are huge and all have walk in closets.

And I love the access from the Master Bathroom into the Laundry (you can also access from the hallway) – talk about convenience!

Winslow SF

Need another bedroom? Add the optional bedroom over the family room.

Winslow SF 5th BR

For more information on the Winslow (including pricing and interior renderings) CLICK HERE.

I can’t wait to build this design. Will you be the first?

Dream Big. Build Smart.

Scroll