In this blog series, I’m chronicling the step by step process of building a custom home. I thought it would be helpful to blog about the process from start to finish. I did a similar series a few years ago but this time around, I hope to take you more behind the scenes and share the ins and outs of building a new home. We just recently purchased our next spec lot on Greenwich Street in Falls Church (Fairfax County, McLean school pyramid) so it’s perfect timing! So far, I’ve covered how we found our lot and negotiated the lot contract and what we did during the study period.
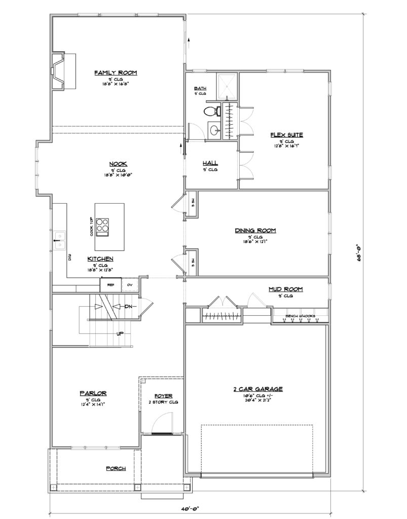
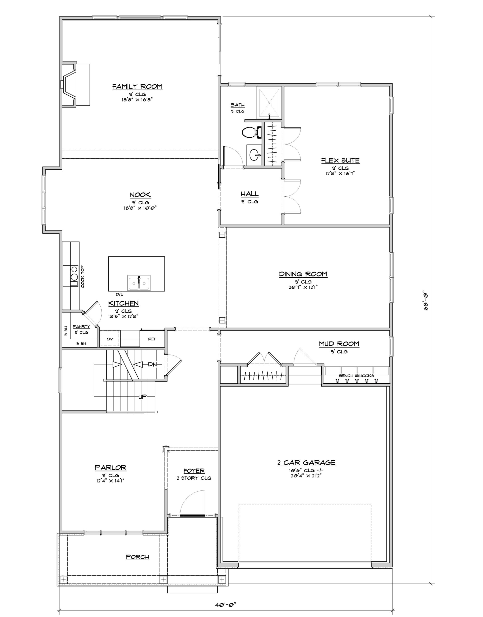
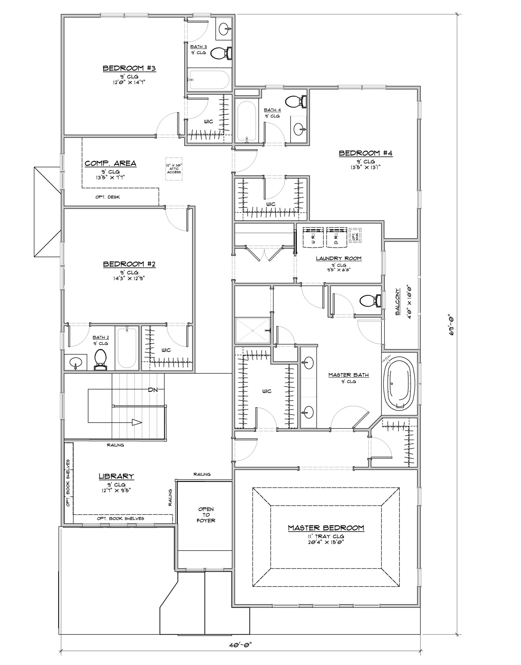
The next step after the study period is ordering the house plans. For this project, we chose the Clarendon Model. I’ve always loved this model and I’m not the only one. It has been one of our top sellers since we introduced it several years ago. With 5 bedrooms, 5 bathrooms and tons of flex space, it is ideal for this market. My advice for choosing a home design? I have a few tips…
Choose a design that fits your lot & your lifestyle. Building restrictions often limit what you can build but don’t worry – we have plenty of designs you can choose from. We also allow total customization on any of our homes, or start from scratch with a Complete Custom Design. We love customizing our designs to fit our clients and their lot!
Why the Clarendon when it comes to fit? Because it has design elements people LOVE including three different flex spaces! The flex suite on the 1st floor could be used as a home office, guest suite or hobby room.

Create a sitting area in the library or close it off for a private space. The computer area is perfect for a kids playroom or teen lounge. I love how it is tucked away but easily accessed by the secondary bedrooms.
Choose a design that will maximize your investment. I know the last thing you are thinking about when building a new home is selling it but the day will come that you will likely sell this home. When you do, don’t get caught trying to sell something few people want.
Why the Clarendon when in it comes to investment? Because people love the look of this home – inside and out!

Choose a design you love. And keep working on it until it’s perfect. Like I said, I love the Clarendon Model but I didn’t love the way the first Clarendon we built turned out. Don’t get me wrong, it was still a great home, but the kitchen. It was dark!
Even when we went with a lighter cabinet, it still felt a little closed in…
Life’s too short to settle so we started playing around with the design and the new layout is so much better! 

Win. Win.
Next up in this series is the first step in your site development – ordering your grading plan!
Dream. Build. Live.
Post updated by Jen 2.2026